- Добавить в избранное
- Задать вопрос
TLS (small) скрытый щелевой диффузор
TOPLINE

Новая запатентованная высокоэффективная
серия щелевых диффузоров скрытого монтажа
⚠ Патент на изобретение RU 2834122 C 1
- Корректное распределение воздушного потока за счет сохранения живого сечения диффузора при любом размере щели и любом положении дефлектора.
- Эффект Коанда - настилающий горизонтальный поток воздуха.
- Конструкция диффузора предусматривает различные варианты монтажа и облегчает установку навесного потолка из металлических профилей и гипсокартона.
- Визуальное совершенство за счет скрытого монтажа в подвесные потолки из гипсокартона и металлического каркаса.
- Модульная сборка позволяет создавать непрерывную линию по всему периметру помещения, что отвечает требованиям самых современных дизайнерских идей.
Конструктивные особенности / модификация
- 1 щель;
- высота щели от 20 до 70 мм;
- длина цельного диффузора от 200 до 2900 мм с любым шагом;
- монтаж под 1 или 2 ГКЛ;
- регулируемый дефлектор;
- выравниватель потока воздуха;
- фланец имеет углубления со специальной формой паза для лучшего сцепления шпаклевки и исключения ее отслоения;
- полка под шпаклевку 2 мм;
- возможна модульная сборка в непрерывную линию из составных секций, в том числе угловых.
Для подключения к системе вентиляции и кондиционирования используется камера статического давления (адаптер).
⚠ В комплект с решеткой не входит и заказывается отдельно.
Линейный щелевой диффузор TL предназначен для скрытой установки в систему вентиляции и кондиционирования в качестве конечного декоративного элемента инженерной системы в жилых, торговых, и офисных помещениях. Диффузоры встраиваются в стены или потолок, изготавливаемые из гипсокартона и металлического каркаса.
Диффузор выполнен в виде рамки из полых металлических профилей и регулируемого дефлектора. Возможна поставка без дефлектора.
Распределение воздушных потоков

Конструкция вентиляционного щелевого диффузора обеспечивает эффективное распределение воздушных потоков с сохранением живого сечения диффузора и объема подаваемого воздуха при любом положении дефлектора.
Подвижный дефлектор индивидуальной формы, специально разработанной для формирования направления воздушных потоков от вертикального до горизонтального потока (от 0° до 5,5° относительно плоскости потолка). Для удобства регулировки дефлектора в наружной части выполнен выступ, благодаря которому можно легко регулировать дефлектор влево и вправо. При любом положении дефлектора сохраняется живое сечение диффузора и соответствует входному сечению, что повышает производительность диффузора и акустический комфорт потребителя.
Дефлектор можно изготавливать и устанавливать сегментно по длине диффузора. Такая конструкция позволяет двигать его разнонаправлено, что позволяет формировать направление струи в обе стороны одновременно.
В зависимости от объема подаваемого воздуха диффузор имеет 3 модификации: S, M, L
Модификация диффузоров | ||
---|---|---|
TLS | TLM | TLL |
![]() | ![]() | ![]() |
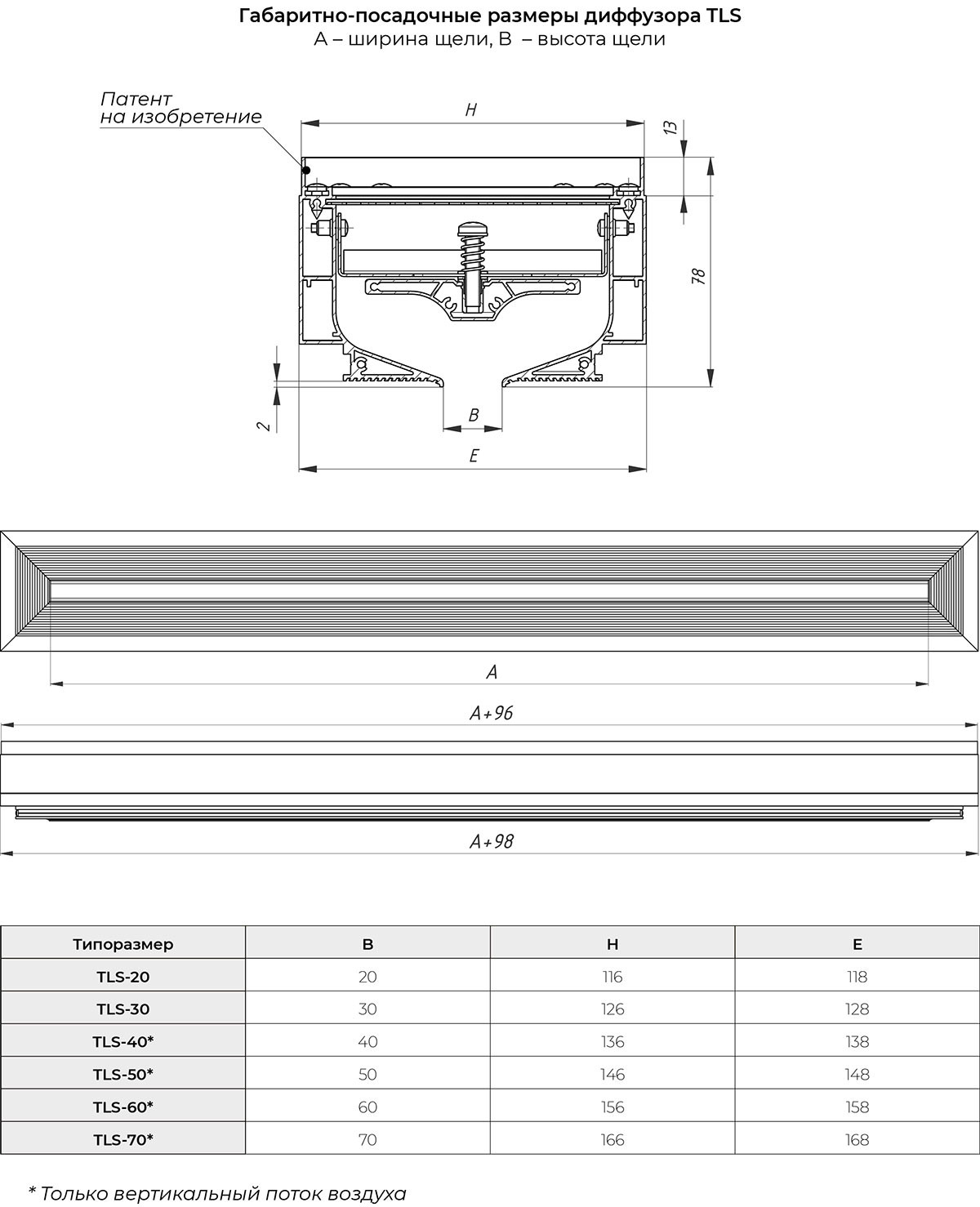
TLS (small). Габаритно-посадочные размеры диффузора.

Модульные секции
F1 одиночная секция | ![]() |
---|---|
E1 концевая секция | ![]() |
F2 одиночная секция | ![]() |
E2 концевая секция | ![]() |
M промежуточная | ![]() |

Угловые секции | ||
---|---|---|
U1 - потолочная | U2 - стеновая внешняя | U3 - стеновая внутренняя |
![]() | ![]() | ![]() |
Камера статического давления (КСД)
Для подключения диффузоров к системе воздуховодов используется камера статического давления - КСД или КСР.
Камера статического давления является элементом систем вентиляции и кондиционирования воздуха, они обеспечивают равномерное распределение воздушных масс через сечение решетки. КСД состоит из стального корпуса с круглым патрубком для подсоединения к воздуховоду. КСР дополнительно оснащены устройством, регулирующим объем подаваемого воздуха, которое устанавливается во входном патрубке.

Типы КСД:
- КСД - стандартная камера с круглой врезкой;
- КСД-У - уменьшенная камера с круглой врезкой;
- КСД-У-О - уменьшенная камера с овальной врезкой;
- КСД-У-П - уменьшенная камера с прямоугольной врезкой.
Уменьшенная камера статического давления позволяет максимально сохранить полезную площадь помещения за счет уменьшения монтажного пространства. Размер монтажного пространства (W) напрямую зависит от размера подключаемого воздуховода - чем меньше воздуховод, тем меньше адаптер для диффузора. В каталоге приведены рекомендуемые размеры воздуховода, но по запросу заказчика возможно изготовить адаптер с любой врезкой.


КСД для TL

Схемы монтажа щелевого диффузора
2 листа ГКЛ по 12,5 мм | 1 лист ГКЛ 12,5 мм |
![]() | ![]() |
2 листа ГКЛ по 9,5 мм | 1 лист ГКЛ 9,5 мм |
![]() | ![]() |
Последовательность монтажа щелевого диффузора
1. До монтажа подвесных потолков установите на потолке камеру статического давления с диффузором. Для этого в потолке вбиваются анкера и вкручиваются шпильки. | 2. Установите направляющие потолочные профили |
![]() | ![]() |
3. Закрепите гипсокартон (1 или 2 листа по 12,5 мм) саморезами 4,2х32 к направляющему профилю ПП 28х27. | 4. Произведите финишную отделку (под шпаклевку предусмотрена полка 2 мм). Стык ГКЛ с фланцем диффузора рекомендуется заделать высокопрочной шпаклевкой Унифлот. |
![]() | ![]() |
Результаты аэродинамического моделирования / вертикальный поток
На примере диффузора TLM-20/1000 при скорости подачи воздуха 1 м/с
Воздушный поток в сечении диффузора | Потеря давления в сечении диффузора |
![]() | ![]() |
Воздушный поток по длине щели | |
![]() |


Результаты аэродинамического моделирования / горизонтальный поток
На примере диффузора TLM-20/1000 при скорости подачи воздуха 1 м/с
Воздушный поток в сечении диффузора | Потеря давления в сечении диффузора |
![]() | ![]() |
Воздушный поток по длине щели | |
![]() |


Результаты аэродинамического моделирования / вытяжка
На примере диффузора TLM-20/1000 при скорости подачи воздуха 1 м/с
Потеря давления в сечении диффузора |
![]() |


Пример заказа диффузора

Пример заказа КСД к диффузору
При заказе диффузора с камерой статического давления, определяющими размерами являются размеры диффузора, поэтому в примере заказа не указываются. По требованию возможно изготовление КСД по чертежам заказчика.

Характеристики
-
Место примененияВ гипсокартон
-
ПроизводительООО "ВЕНТРЕШЕТКИКОМ"
-
Серия решеткиTOPLINE
-
Вид решеткиЩелевые
-
Способ монтажаСкрытого монтажа
-
РегулировкаРегулируемая
-
БрендTHE GRILLES
-
ФормаПрямоугольные
-
МатериалАлюминий
-
КонструкцияНеразборная
-
Предоплата100%
Особенности
-
Форма интелектуальной собственностиПатент на изобретение
Чертеж

Отзывы
Отзывов нет. Станьте первым, кто оставит отзыв!
Пример заказа

- Похожие товары
- Смотрели ранее
- Хиты продаж
- Распродажа
- Популярное
Способы монтажа
Мы располагаем огромными возможностями и выбором
Получите консультацию
Оставьте свои контактные данные и мы вам перезвоним!